Ihr perfekter Partner für erfolgreiche Projekte
Die Ausstattung einer modernen Werkstatt erfordert eine bedeutende Investition. Eine bestens ausgerüstete und effizient funktionierende Werkstatt mit topaktuellen technischen Standards ist nicht nur attraktiv für Ihre Kunden, sondern bietet auch den Komfort, der Ihre Kunden immer wieder zu Ihnen führt.
Bei solchen Investitionen ist es entscheidend, die beste Qualität und den besten Service zu erhalten – da haben Sie mit uns als Partner die richtige Wahl getroffen.
Wir bieten Ihnen das perfekte Zusammenspiel aus modernsten Werkstattgeräten, hochwertigen Autoersatzteilen und Zubehör sowie einem erstklassigen Kundendienst. Diese Kombination ermöglicht es uns, Ihnen den Service zu bieten, den Sie verdienen – zuverlässig, effizient und professionell.
Verschaffen Sie sich anbei einen Überblick.
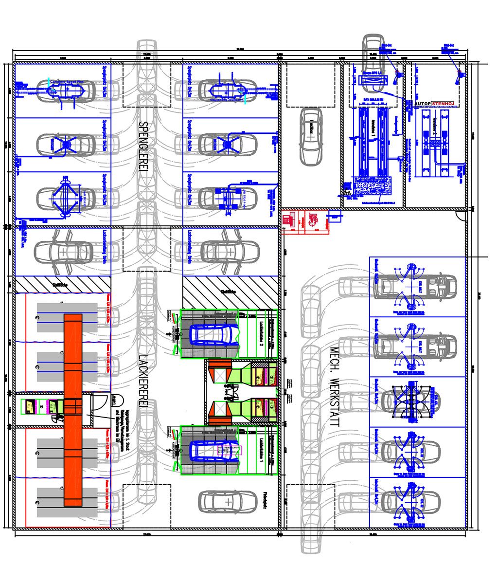
Planung
Lackierkabinen, Werkstätten,
Bauberatung und Unterstützung bei Behördenangelegenheiten
Unser Spezialisten in der Planungsabteilung bei ihrer täglichen Arbeit. Jedes Detail wird berücksichtigt, um den Wünschen unsere Kunden gerecht zu werden.
Montage
Von Kastner-Werkstättengeräte, Hebebühnen, Lackier- & Absauganlagen, Ölanlagen (Alt- & Frischöl), Organisation der Erstabnahme
Über 40 Techniker sind österreichweit für Sie täglich im Einsatz, um neue Geräte fachmännisch bei Ihnen zu installieren.
Einschulung
Die Funktionalität der Kastner-Werkstättengeräte liegt uns am Herzen!
Daher legen wir besonders viel Wert darauf, dass unsere Kunden von einem Kastner Techniker eingeschult werden!
Servicierung
Von Lackieranlagen, Hebebühnen, Bremsenprüfstände, Gelenkspieltester, Abgastester, Abgasgeräte, Absauganlagen, Schweinwerfereinstellgeräte, Achsmessgeräte, Wucht- & Montiermaschinen, Klimafüllgeräte, Diagnosegeräte, uvm.
Jedes Gerät bekommt bei jedem Service bzw. bei jeder Wartung einen Kastner-Service Kleber!
Reparatur
Von Kastner-Werkstättengeräten. Wir stellen auch Leihgeräte!
Ein Kastner-Techniker sorgt für schnelle Abhilfe bei Problemen. Nur wenn das Gerät funktioniert, kann der Kunde Geld verdienen.




Unsere
Techniker
sind als echte Kastner Spezialisten immer für Sie da, wenn‘s ums Thema Gerätevorstellung geht.
Bei Fragen oder Interesse an unseren Dienstleistungen und Produkten stehen wir Ihnen gerne zur Verfügung. Kontaktieren Sie uns noch heute und erfahren Sie, wie wir Ihre Werkstatt optimal unterstützen können.
Unsere
Dienstleistungen
Die Ausrüstung einer Werkstatt kostet viel Geld. Aber nur eine bestens ausgerüstete, gut funktionierende Werkstatt mit den neuesten technischen Standards wirkt auf Ihren Kunden noch attraktiver und bietet ihm dem Komfort, der ihn nachhaltig bewegt, sich für Ihre Werkstatt zu entscheiden.
Für die hohe Investition wünschen Sie sich die beste Qualität und den besten Service. Selbstverständlich auch die Gewissheit mit Ihrem Partner die richtige Wahl getroffen zu haben. In einer gut funktionierenden Werkstatt spielen auch Ersatzteile und Zubehör eine tragende Rolle.
Für die Sicherheit, die Sie sich für Ihre Kunden und Ihren Erfolg wünschen, brauchen Sie das perfekte Zusammenspiel aus optimaler Werkstättenausrüstung und zuverlässiger Ersatzteillieferung.
